功能改造設計(民用建筑)
1、適用范圍:
本項設計主要解決由于建筑結構功能改變需要提高原設計使用荷載,有時會遇到大幅度提高使用荷載的情況,導致原結構主要承重構件承載力不滿足規范要求,采用傳統的加固方法提高結構承載力又非常有限,急需采取有效的加固方法來解決此類工程問題。
2、設計依據
《建筑結構荷載規范》(GB5009-2012)
《建筑結構可靠度設計統一標準》(GBJ50068-2001)
《混凝土結構設計規范》(GB50010-2010)
《混凝土結構加固設計規范》(GB 50367-2013)
《混凝土結構后錨固技術規程》(JGJ 145-2013)
《建筑結構加固工程施工質量驗收規范》(GB50550-2010)
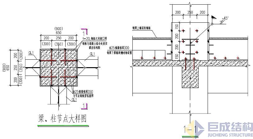
3、加固大樣圖
	 
 
(樓面加固做反向鋼梁)
注:一般應用于電信機房改造中受限于加固條件只能在樓板面施工的情況。
	 
 
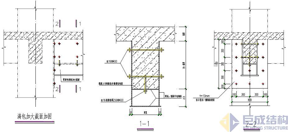
(梁包鋼加大截面加固)
注:一般應用于大幅度提高使用荷載,構件截面尺寸不夠,且受限于工期和現場條件,不適宜采用傳統的增大混凝土截面做法的情況。
	 
 
注:一般應用于樓板使用荷載提高,樓板承載力相比原設計有10%20%的差距,需小幅度提高樓板承載力的情況。
	 
 
(板底新增鋼梁加固)
注:一般應用于大幅度提高使用荷載,樓板承載力不足或局部增加較大集中荷載,不適合采用傳統的樓板粘貼鋼板或纖維布的方式,需大幅度提高樓板承載力的情況。
	 
 
	
	 
(樓板開洞加固)
注:一般應用于對原有樓板開洞,切斷原樓板鋼筋,需對開洞區域進行補償加固的情形。
	
 
加固設計范例:
瀘定公司施工圖 下載
	
	
	
- 上一篇: 脫硫、脫銷及超凈排放加固設計(工業與火力發電)
- 下一篇: 結構抗震加固設計(民用建筑)



