結構抗震加固設計(民用建筑)
一、框架結構抗震加固設計
1、適用范圍:
主要解決一些采用老的抗震規范設計,但不滿足現行抗震規范要求的框架結構,框架結構抗震設計主要以增強構件的延性和加強錨固為出發點,并結合相關加固設計規范、圖集和工程經驗,對框架結構的梁、板、柱進行加固以滿足相關設計規范的要求。
2、設計依據
《建筑結構荷載規范》(GB5009-2012)
《建筑結構可靠度設計統一標準》(GBJ50068-2001)
《混凝土結構設計規范》(GB50010-2010)
《混凝土結構加固設計規范》(GB 50367-2013)
《混凝土結構后錨固技術規程》(JGJ 145-2013)
《建筑結構加固工程施工質量驗收規范》(GB50550-2010)
《建筑抗震設計規范》(GB50011-2010)
《鋼結構設計規范》(GB50017-2003)
《建筑鋼結構焊接規范》(GB50661-2011)
《鋼結構工程施工質量驗收規范》(GB50505-2001)
《建筑結構加固工程施工質量驗收規范》(GB50550-2010)
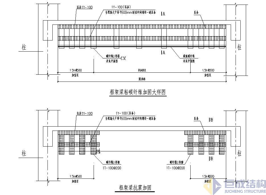
3、加固大樣圖
設計范例:
高層整體抗震加固 下載
二、磚混結構抗震加固設計
1、適用范圍:
主要解決一些現存的采用老的抗震規范設計,但不滿足現行抗震規范要求的老舊混結構和混合結構,鑒于老的規范在抗震計算和構造措施上對結構在地震作用下可靠度較低的特點,磚混結構抗震設計主要結合相關的加固設計規范、圖集和工程經驗,對磚混結構的墻體、樓板等主要受力構件進行加固以滿足相關設計規范的要求。
2、設計依據
《建筑結構荷載規范》(GB5009-2012)
《建筑結構可靠度設計統一標準》(GBJ50068-2001)
《混凝土結構設計規范》(GB50010-2010)(2015版)
《混凝土結構加固設計規范》(GB 50367-2013)
《混凝土結構后錨固技術規程》(JGJ 145-2013)
《建筑結構加固工程施工質量驗收規范》(GB50550-2010)
《建筑抗震設計規范》(GB50011-2010)(2016版)
《砌體結構設計規范》(GB50003-2011)
《砌體結構加固設計規范》(GB50702-2011)
3、加固大樣圖
設計范例:
磚混結構抗震加固設計 下載
- 上一篇: 功能改造設計(民用建筑)
- 沒有了


