抗浮工程
1 淺巖基礎抗浮
1.1 武漢經開萬達廣場地下室抗浮自鎖錨桿
本工程于2010年施工。新建工程抗浮設計采用直徑32mm精軋螺紋鋼筋抗浮自鎖錨桿,合計4012根,單根抗浮錨桿抗拔承載力特征值320KN。業主對工期要求極高,采用在地下室底板預埋套管留孔,地下室土建封頂后再施工抗浮自鎖錨桿的方案,不影響主體結構施工進度,實現“零工期”,經濟效益顯著。
圖1 武漢經開萬達廣場地下室抗浮自鎖錨桿工程
1.2 湖南長沙新里程廣場抗浮錨桿工程
本工程于2020年~2021年施工。新建工程抗浮設計采用直徑40mm精軋螺紋鋼筋抗浮自鎖錨桿,合計3500根。單根抗浮錨桿抗拔承載力特征值410KN。相較于傳統砂漿抗浮錨桿,造價節省約30%。
原設計普通錨桿:
a、四層地下室,面積約1.1萬平方,水頭高度18.8m。
b、常規錨桿單根承載力特征值260KN,間距1.2*1.2m,長度9m,
c、總數量5580根,總長度50220m;
d、總造價約954萬。
巖石自鎖抗浮錨桿:
a、單根承載力特征值410KN,間距1.5*1.5m,長度7.5m(純地下室),6.0m(主樓地下室)。
b、總數量3520根,總長度24571m。
c、合同價734萬元,節省220萬元,節省率23%。
圖2 湖南長沙新里程廣場抗浮錨桿工程
1.3 貴州凱里暢達公館地下室抗浮錨桿應急處理工程
本工程于2019年~2020年實施,主樓下部負三層地下室,約4000平方米,原設計底板抗浮設計水位考慮不夠,導致底板開裂漏水,本次方案按實際水頭高度6m重新考慮抗浮,鑒于該項目地下室底板以下即為強度較高的中風化巖石,故采用自鎖抗浮錨桿實施,單根錨桿承載力特征值300KN,總長度不小于6m,總數量為512根,總長度3072m。
貴州凱里暢達公館
圖3 貴州凱里暢達公館抗浮錨桿工程現場施工照片
2 利用樁基承臺施加預應力抗浮
該抗浮方案可適用于任何地基基礎,既能處理抗浮事故,也能用于新建工程。
2.1云南某商業中心地下室抗浮處理工程
該商業中?裙樓四層地下室,四萬多平?,底板出現?量裂縫,滲?嚴重,完?五年以上,?直未能使?。常規抗浮?案造價5000多萬元、且難以實施;采?擴孔?鎖錨桿?案,既能有效實施并解決?程問題,??常規?案節約2000萬元造價,技術與經濟效益顯著。
地下室處理方案圖
圖4 抗浮錨桿處理方案
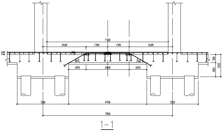
2.2 云南某項目地下室抗浮處理工程
該項目位于昆明市官渡區,總建筑面積約22萬平方米,建筑物主要由5棟超高層建筑、2棟高層建筑及附屬的配套設施組成,整體設有3層地下室,地下室底板標高為1880.50m。水頭高度11.01m。因水文地質條件發生變化,地下室底板局部抗浮不滿足要求導致底板開裂滲水。每個預應力點向下的主動力為25噸,1個標準柱網因預應力提供的總抗浮力為25×6=150t。
圖5 地下室抗浮處理方案


