建(構)物頂升糾偏加固(頂升糾偏與平移)
一、適用范圍
建(構)筑物頂升、糾偏主要解決由于地基沉降、偶然荷載、工程事故等原因導致建(構)筑物結構產生傾斜的情況,傳統的糾偏方式主要有:迫降法、頂升發、綜合法等。其中迫降法和綜合法受限于場地條件和建筑物體型限制,且存在諸多不確定因素,在實際工程中采用頂升法進行建(構)物頂升糾偏為較常規和適用的方法。
二、設計依據
《建筑結構荷載規范》(GB5009-2012)
《建筑結構可靠度設計統一標準》(GBJ50068-2001)
《混凝土結構設計規范》(GB50010-2010)
《混凝土結構加固設計規范》(GB 50367-2013)
《混凝土結構后錨固技術規程》(JGJ 145-2013)
《建筑結構加固工程施工質量驗收規范》(GB50550-2010)
《既有建筑地基基礎加固技術規范》(JGJ123-2012)
《錨桿靜壓樁技術規程》(YBJ227-91)
《建筑地基基礎設計規范》(GB50007-2011)
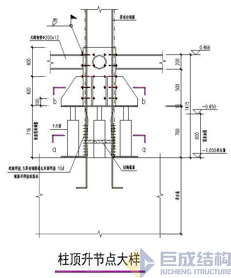
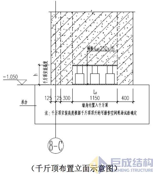
三、加固大樣
四、設計范例:
龍馬新居糾偏加固施工圖 下載
- 上一篇: 建(構)物平移設計(頂升糾偏與平移)
- 下一篇: 水工閘墩、構筑物改造設計(水利與水力發電)


