粘結型鋼加固技術
一、適用范圍
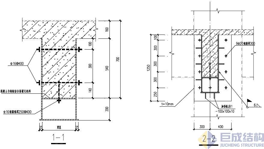
1)粘結型鋼加大截面加固法:適用于原結構梁截面不足,需要大幅度提高截面承載力,而由于條件限制無法采用混凝土加大梁截面的傳統方法施工,通過粘結與錨結將型鋼梁與原混凝土構件連接成整體,通過加大構件截面,大幅度提高其承載力和剛度;
2)粘結型鋼改變傳力途徑加固法:適用于原結構樓面荷載大幅度提高或增加較大局部荷載,通過在板底粘型鋼改變傳力途徑或減小跨度提高樓板承載力;
3)設計依據
《建筑結構荷載規范》(GB5009-2012)
《建筑結構可靠度設計統一標準》(GBJ50068-2001)
《混凝土結構設計規范》(GB50010-2010)
《混凝土結構加固設計規范》(GB 50367-2013)
《混凝土結構后錨固技術規程》(JGJ 145-2013)
《建筑結構加固工程施工質量驗收規范》(GB50550-2010)
二、粘接型鋼加固應用范例
三、原理簡介:
思路起源為鐵摩辛柯梁,通過界面粘結、剪切鍵或植筋實現加固型鋼與與被加固結構連成整體聯合工作,符合加固理論。
四、施工工藝
1、粘接型鋼加大截面
1)鑿除原結構表面粉刷層,并將表面清理干凈;
2)在結構構件植筋位置處及鋼板預鉆孔;
3)將處理好的鋼板按圖紙要求定位、焊接;
4)植筋,灌注結構膠至飽滿密實;
5)鋼構件表面外粘粗砂供粉刷使用,后期表面裝修水泥砂漿厚度不小于30mm;
6)所有粘鋼構件應先焊接后灌膠。
2、板底粘貼型鋼加固
1)鑿除原結構表面粉刷層,并將表面清理干凈;
2)在結構構件植筋位置處及鋼板預鉆孔;
3)將處理好的型鋼按圖紙要求定位、焊接;
4)植筋,灌注結構膠至飽滿密實;
5)構件表面涂刷防腐、防銹處理。
五、工程案例
瀘定公司施工圖 點擊下載


